L'installation d'une piscine intérieure apporte un confort indéniable, mais elle s'accompagne également d'un défi majeur : la gestion de l'humidité. La vapeur d'eau libérée par la piscine sature progressivement l'air ambiant, créant un environnement propice à la condensation sur les surfaces froides. Ce phénomène peut entraîner une cascade de problèmes, allant de l'apparition de moisissures et de rouille à la dégradation des matériaux de construction et des équipements. Pour préserver la longévité de votre espace aquatique et assurer un confort optimal aux baigneurs, l'installation d'un déshumidificateur devient indispensable. Le Zodiac Sirocco², avec ses technologies avancées et son design soigné, s'impose comme une solution de choix pour relever ce défi.

Le déshumidificateur Zodiac Sirocco² a été conçu pour offrir une expérience de piscine intérieure des plus agréables, en combinant performance, discrétion et intelligence. L'un de ses principaux atouts réside dans son confort optimal. Grâce à son mode silence, qui divise la source sonore par deux par rapport au mode standard, et à son soufflage vertical, le Sirocco² assure une diffusion de l'air qui préserve la tranquillité et évite la génération de courants d'air directs sur les baigneurs. Cette conception discrète permet de maintenir une atmosphère paisible, idéale pour la détente.
L'intelligence intégrée est une autre caractéristique marquante du Sirocco². L'appareil est équipé d'un capteur d'humidité performant doté d'une fonction d'auto-diagnostic. Ce système assure en permanence le maintien du niveau d'hygrométrie idéal, essentiel pour la durabilité du bâtiment et le confort des utilisateurs. De plus, le Sirocco² fait preuve d'une gestion énergétique avisée : lorsque le bassin est inoccupé, par exemple lorsque le volet roulant est fermé, il diminue sa consommation d'énergie en abaissant la température de chauffage de l'air. Cette fonction d'optimisation énergétique contribue à réduire les coûts d'exploitation tout en maintenant un environnement sain.
Le design harmonieux du Sirocco² est également un élément différenciateur. Avec ses lignes épurées, l'absence de grille apparente et la disponibilité de deux coloris élégants (gris et blanc), il s'intègre avec raffinement et discrétion dans tous les environnements de piscines intérieures. Cette esthétique soignée permet à l'appareil de se fondre dans le décor sans dénaturer l'espace.
La gamme Sirocco² propose différentes versions pour répondre aux spécificités de chaque installation. Le modèle Zodiac SIROCCO 2 3M Standard (Ambiance), par exemple, est une unité de déshumidification à soufflage vertical conçue pour une installation en ambiance. Il est disponible avec une capacité de déshumidification de 3,8 litres par heure, pour une surface d'eau maximale indicative de 33 m². Son corps en métal et sa grille en ABS garantissent robustesse et durabilité.
Pour ceux qui recherchent des fonctionnalités supplémentaires, plusieurs options sont disponibles :
La gamme comprend également les modèles Sirocco² 2M, 5M et 5T, offrant des capacités de déshumidification croissantes (de 2,5 L/h pour le 2M à 5,7 L/h pour le 5T) et adaptées à des volumes de hall piscine plus importants, allant jusqu'à 250 m³. La version 5T est même disponible en alimentation triphasée pour les installations plus gourmandes en énergie.

Le Zodiac Sirocco² se distingue par des caractéristiques techniques robustes et performantes, conçues pour une efficacité maximale et une longue durée de vie.
| Caractéristiques techniques | Version 3M | Option Résistance électrique (appoint) | Option Batterie eau chaude (appoint) |
|---|---|---|---|
| Poids (kg) | 70 | - | - |
| Capacité de déshumidification (air 30°C - hygrométrie 70%) (L/h) | 3,8 | - | - |
| Pour surface d'eau maxi (m²) | 33 | - | - |
| Puissance absorbée (W) | 2170 | - | - |
| Débit d'air (m³/h) | 800 | - | - |
| Alimentation électrique | 230 V / 50 Hz | 230 V / 50 Hz | 230 V / 50 Hz |
| Intensité absorbée nominale (A) | 9,5 | - | - |
| Intensité maxi absorbée (A) | 12,5 | 13,1 | - |
| Fluide frigorigène | R410A | - | - |
| Évacuation des condensats | Flexible tube 12/18 | - | - |
| Pression acoustique (dB(A) en mode Standard / Silence) | 65 / 62 | - | - |
| Pression acoustique à 5m (dB(A) en mode Standard / Silence) | 40 / 37 | - | - |
| Puissance appoint (kW) | - | 3 | 3,2 / 8,1 |
| Intensité absorbée maximale appoint (A) | - | 13,1 | - |
| Puissance (kW) avec primaire (option batterie eau chaude) | - | - | 3,2 / 8,1 |
| Débit d'eau (kW) avec primaire (option batterie eau chaude) | - | - | 0,27 / 0,35 |
| Perte de charge (kPa) avec primaire (option batterie eau chaude) | - | - | 23 / 39 |
| Raccordement (mm) (option batterie eau chaude) | - | - | 15/21 mâle à visser |
Il est important de noter que la capacité de déshumidification et la surface d'eau maximale sont des valeurs indicatives. D'autres paramètres, tels que la température de l'eau, la température ambiante, le taux d'hygrométrie souhaité, la présence d'une couverture, la ventilation du local et la fréquentation de la piscine, influencent la performance réelle de l'appareil. Pour une évaluation précise, il est recommandé de contacter un professionnel.

L'installation du Zodiac Sirocco² est conçue pour être aussi simple et flexible que possible, s'adaptant à diverses configurations. L'appareil peut fonctionner dans une plage de température ambiante allant de +10°C à +40°C pour la fonction de déshumidification, et de +5°C à +40°C pour la fonction chauffage seule.
Le chauffage de l'air du local peut être intégré à l'appareil en option, soit par une batterie eau chaude, soit par un appoint électrique. Cette modularité permet d'adapter l'installation aux contraintes et aux équipements déjà présents.
Pour une stabilité maximale et pour éviter tout risque de basculement, l'appareil doit obligatoirement être fixé au mur. Un pied de support optionnel peut être ajouté, notamment si l'installation est prévue contre un mur qui ne pourrait pas supporter la charge complète de l'appareil.
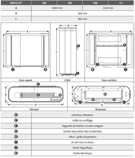
La console du déshumidificateur aspire l'air humide du local et souffle un air sec et réchauffé. Ce processus permet de maintenir un taux d'hygrométrie idéal, généralement entre 60% et 70%, prévenant ainsi les désagréments liés à l'excès d'humidité. L'interface conviviale de l'appareil permet de contrôler avec précision le confort optimal du hall piscine.
L'humidité excessive dans un local de piscine intérieure n'est pas qu'un simple désagrément esthétique ; elle représente une menace sérieuse pour la structure du bâtiment et la santé des occupants. L'air saturé d'humidité se condense sur toutes les surfaces plus froides : murs, plafond, menuiseries, équipements, etc. Ces gouttelettes d'eau créent un milieu propice au développement de moisissures, responsables de problèmes respiratoires et d'allergies. La rouille attaque rapidement les éléments métalliques, tandis que les peintures se décollent et les matériaux de construction peuvent se dégrader sur le long terme.
Le déshumidificateur Zodiac Sirocco² agit comme un rempart contre ces dégradations. En régulant activement le taux d'hygrométrie, il assure un environnement sain et préserve l'intégrité de votre investissement. La marque Zodiac, reconnue pour son excellence et sa fiabilité dans le domaine des équipements de piscine, met un point d'honneur à développer des produits alliant esthétisme, performance et technologie de pointe. Le Sirocco² incarne cette philosophie, offrant une solution durable et efficace pour profiter pleinement de votre piscine intérieure en toute sérénité.
Le déshumidificateur Sirocco² est une réponse fiable et économique aux besoins de déshumidification des bâtiments abritant des piscines d'intérieur. Sa conception vise à simplifier l'installation, souvent sans travaux majeurs, et à garantir une efficacité optimale pour un environnement plus sain.
tags: #deshumidificateur #zodiac #sirocco #2