Le domaine du confort climatique domestique est en constante évolution, cherchant à concilier performance énergétique, respect de l'environnement et économies substantielles. Dans cette quête d'innovation, Daikin, acteur majeur sur le marché mondial, propose une solution particulièrement prometteuse : le chauffe-eau thermodynamique Daikin ECH2O. Cette technologie révolutionnaire, qui combine une pompe à chaleur Inverter avec un ballon accumulateur de chaleur, redéfinit la manière dont nous produisons notre eau chaude sanitaire et chauffons nos habitations. En s'appuyant sur un principe de fonctionnement ingénieux et des composants de haute technologie, le Daikin ECH2O offre une alternative ultra performante aux systèmes traditionnels, tout en garantissant un confort d'utilisation optimal et des économies significatives.

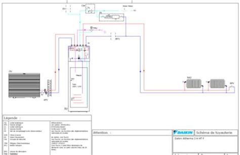
Au cœur du système Daikin ECH2O se trouve une combinaison astucieuse de deux unités principales : un groupe extérieur équipé de la technologie Inverter et un ballon accumulateur de chauffage. Le principe de fonctionnement est d'une grande simplicité, mais ses implications en termes d'efficacité sont considérables. La pompe à chaleur, directement connectée au ballon d'eau chaude sanitaire par une double tuyauterie frigorifique, capte les calories présentes dans l'air extérieur. L'eau froide, quant à elle, entre dans le ballon pour y être réchauffée dans un échangeur semi-instantané. Elle ressort ensuite, chaude et à la température de consigne souhaitée, prête à être distribuée vers les points de puisage tels que les lavabos ou les douches.
Cette approche, qualifiée de condensation directe, permet une production d'eau chaude semi-instantanée. L'originalité de ce système réside également dans l'absence de stockage d'eau chaude sanitaire à l'intérieur du chauffe-eau lui-même. La production semi-instantanée est permise grâce à l'action du fluide frigorigène, qui transite entre la pompe à chaleur et le chauffe-eau, stockant ainsi l'énergie. Cette conception innovante élimine les risques de corrosion, de dépôt de tartre et de fuites, garantissant une hygiène de l'eau optimale.
Le chauffe-eau thermodynamique Daikin ECH2O est conçu pour offrir une solution hautes performances, capable de répondre aux besoins croissants des foyers modernes. Il permet de disposer d'eau chaude en continu tout au long de la journée, tout en consommant jusqu'à trois fois moins d'électricité qu'un chauffe-eau électrique traditionnel. Cette efficacité énergétique remarquable se traduit par des économies substantielles sur les factures d'énergie. De plus, le système est compatible avec tous les tarifs EJP et Tempo d'EDF, offrant une flexibilité appréciable pour optimiser la consommation électrique.
Grâce à un design ultra compact, le Daikin ECH2O trouve facilement sa place dans les logements, même les plus exigus. Il est disponible en deux tailles de ballons, de 300 ou 500 litres, pour s'adapter aux besoins en eau chaude sanitaire d'une famille de 4 ou 6 personnes, voire plus. Cette polyvalence, combinée à une performance énergétique de premier ordre, fait de ce chauffe-eau un choix judicieux pour de nombreux foyers. Le système est éligible aux aides financières telles que le CITE (Crédit d'Impôt pour la Transition Énergétique) et bénéficie d'un Label A, témoignant de son excellence en matière d'efficacité énergétique, avec un SCOP (Coefficient de Performance Saisonnier) de 3.

L'un des atouts majeurs du ballon thermodynamique Daikin réside dans son approche novatrice en matière d'hygiène et de sécurité. Il ne nécessite aucun équipement traditionnel tel qu'un échangeur à plaques, une anode, ou un vase d'expansion. Cette absence d'éléments superflus élimine les risques de corrosion, de dépôt de tartre et de fuites, qui peuvent affecter les chauffe-eau conventionnels. Par conséquent, l'hygiène de l'eau produite est optimale, et le risque de prolifération de bactéries, y compris la légionelle, est drastiquement réduit. La cuve, conçue pour une durabilité accrue, ne requiert aucune maintenance spécifique, simplifiant ainsi l'entretien pour l'utilisateur. L'interface de régulation est intuitive, rendant le contrôle du système aisé.
Le Daikin ECH2O s'inscrit pleinement dans la démarche de la maison connectée et des énergies renouvelables. Il est "smartgrid ready", ce qui signifie qu'il est capable de communiquer avec un réseau électrique intelligent. Cette fonctionnalité permet d'optimiser sa consommation en fonction des tarifs de l'électricité et de la disponibilité des ressources. De plus, le chauffe-eau est pré-équipé pour le raccordement à des panneaux solaires. Il est possible d'y connecter des panneaux solaires auto-vidangeables placés en toiture, ou des panneaux photovoltaïques, permettant ainsi de produire votre propre électricité et de réduire davantage votre empreinte carbone et vos factures énergétiques. La cuve intègre, dès sa fabrication, une canne solaire disposée au centre de l'échangeur Inox, facilitant l'installation d'un système solaire hybride.
La conception du Daikin ECH2O met l'accent sur la simplicité, tant pour l'installation que pour la maintenance. Le package combinant ballon et pompe à chaleur, ainsi que l'absence d'équipements complexes comme le vase d'expansion, facilitent grandement la mise en place du système. Les principaux organes et l'interface utilisateur sont stratégiquement disposés en haut du ballon, assurant un accès aisé sans nécessiter le démontage de parties importantes de la cuve. Cette accessibilité simplifie les interventions d'entretien et de dépannage, réduisant les coûts et les contraintes pour le propriétaire.
La pompe à chaleur Daikin Altherma 4 H ECH2O représente une avancée significative dans le domaine du chauffage domestique et de la production d'eau chaude sanitaire. Cette technologie innovante combine efficacité énergétique et respect de l'environnement grâce à l'utilisation du réfrigérant R290, un gaz naturel. Ce système tout-en-un, qui intègre directement un ballon thermique pour la production d'eau chaude, s'adapte parfaitement aux besoins des habitations modernes.
Disponible en plusieurs puissances, allant de 6 à 14 kW, la Daikin Altherma 4 H ECH2O garantit un confort thermique optimal tout au long de l'année. Les ballons thermiques intégrés, d'une capacité de 300 ou 500 litres, assurent une disponibilité constante d'eau chaude sanitaire. Cette solution complète simplifie l'installation et contribue à réduire considérablement les factures énergétiques.
La pompe à chaleur Daikin Altherma 4 H ECH2O se décline en plusieurs modèles, offrant une gamme de puissances adaptée à différentes tailles d'habitation. Les modèles disponibles sont les suivants :
Chaque modèle est conçu pour offrir le meilleur rapport entre performance et consommation électrique, évitant ainsi le surdimensionnement et optimisant l'investissement. L'utilisation du réfrigérant R290, ou propane, un fluide naturel, présente un potentiel de réchauffement planétaire extrêmement faible, tout en offrant d'excellentes performances thermiques. Cette technologie écologique respecte les normes environnementales les plus strictes, préservant la couche d'ozone tout en assurant un chauffage performant.
L'efficacité énergétique est un atout majeur de cette gamme. Le système affiche des coefficients de performance remarquables dans diverses conditions climatiques, maintenant une production constante même par températures négatives. La technologie Inverter permet d'ajuster automatiquement la puissance de la pompe à chaleur en fonction des besoins réels, optimisant ainsi la consommation électrique en permanence. La régulation intelligente garantit un confort thermique stable, se traduisant par des économies substantielles sur le long terme et un retour sur investissement rapide.
Le système innovant de production d'eau chaude sanitaire intégré à l'Altherma 4 H ECH2O combine efficacement le chauffage de l'habitation avec la préparation d'eau chaude pour les besoins quotidiens. Cette solution tout-en-un simplifie l'installation, réduit l'encombrement et optimise les coûts. Le système utilise les calories de l'air extérieur pour chauffer l'eau de manière écologique, garantissant une disponibilité constante d'eau chaude, quelle que soit la saison.
Les ballons thermiques de 300 et 500 litres sont proposés pour s'adapter aux besoins spécifiques de chaque foyer. Le modèle de 300 litres convient aux familles de 3 à 4 personnes, tandis que la version de 500 litres répond aux exigences des familles nombreuses ou des habitations avec une forte consommation. L'isolation renforcée de ces réservoirs limite les déperditions thermiques, optimisant les performances énergétiques.
Les avantages du ballon eau chaude sanitaire de l'Altherma 4 H ECH2O incluent :
L'ensemble fonctionne de manière intelligente pour optimiser les cycles de chauffe selon les habitudes de consommation, assurant un confort thermique idéal tout en maîtrisant les dépenses énergétiques.
Pour ceux qui cherchent à pousser encore plus loin les économies d'énergie et l'autonomie, Daikin propose le système solaire hybride ECH2O Sun, développé en partenariat avec Dualsun. Ce système permet de produire simultanément de l'électricité et de l'eau chaude sanitaire grâce à l'installation de panneaux solaires hybrides. Ces panneaux, conçus en France, sont garantis 10 ans et 25 ans pour le rendement. Leur double face intègre des cellules solaires photovoltaïques et un échangeur thermique, leur permettant de fournir à la fois de l'électricité et de l'eau chaude.
Le système ECH2O Sun se compose également d'un ballon solaire en polypropylène, qui évite les risques de corrosion et de légionelle, et stocke l'eau chauffée par les panneaux. Un générateur d'appoint, qui peut être une pompe à chaleur air/eau, une chaudière à gaz, un chauffe-eau thermodynamique ou une chaudière fioul à condensation, prend le relais pour assurer le complément d'eau chaude lorsque la consommation est plus importante.
Le rendement de cette installation hybride est remarquable : un panneau solaire hybride peut produire jusqu'à trois fois plus d'énergie qu'un panneau photovoltaïque. Il est possible d'espérer couvrir jusqu'à 77 % des besoins en eau chaude et 50 % des besoins en électricité avec ce kit. Bien que le coût initial de ce système soit plus conséquent que celui d'une installation photovoltaïque simple, les avantages en termes de rendement, d'optimisation de la toiture et de potentiel de revente d'énergie peuvent le rendre très rentable sur le long terme. L'installation est également facilitée, que ce soit en rénovation ou en construction neuve, à condition que le toit puisse supporter les panneaux.
tags: #ballon #thermodynamique #daikin #ech2o